analytics
Sold

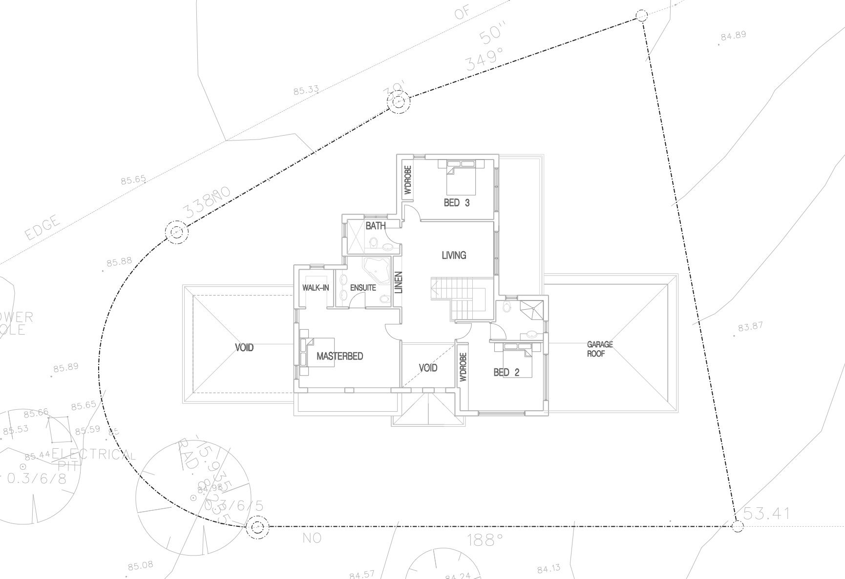
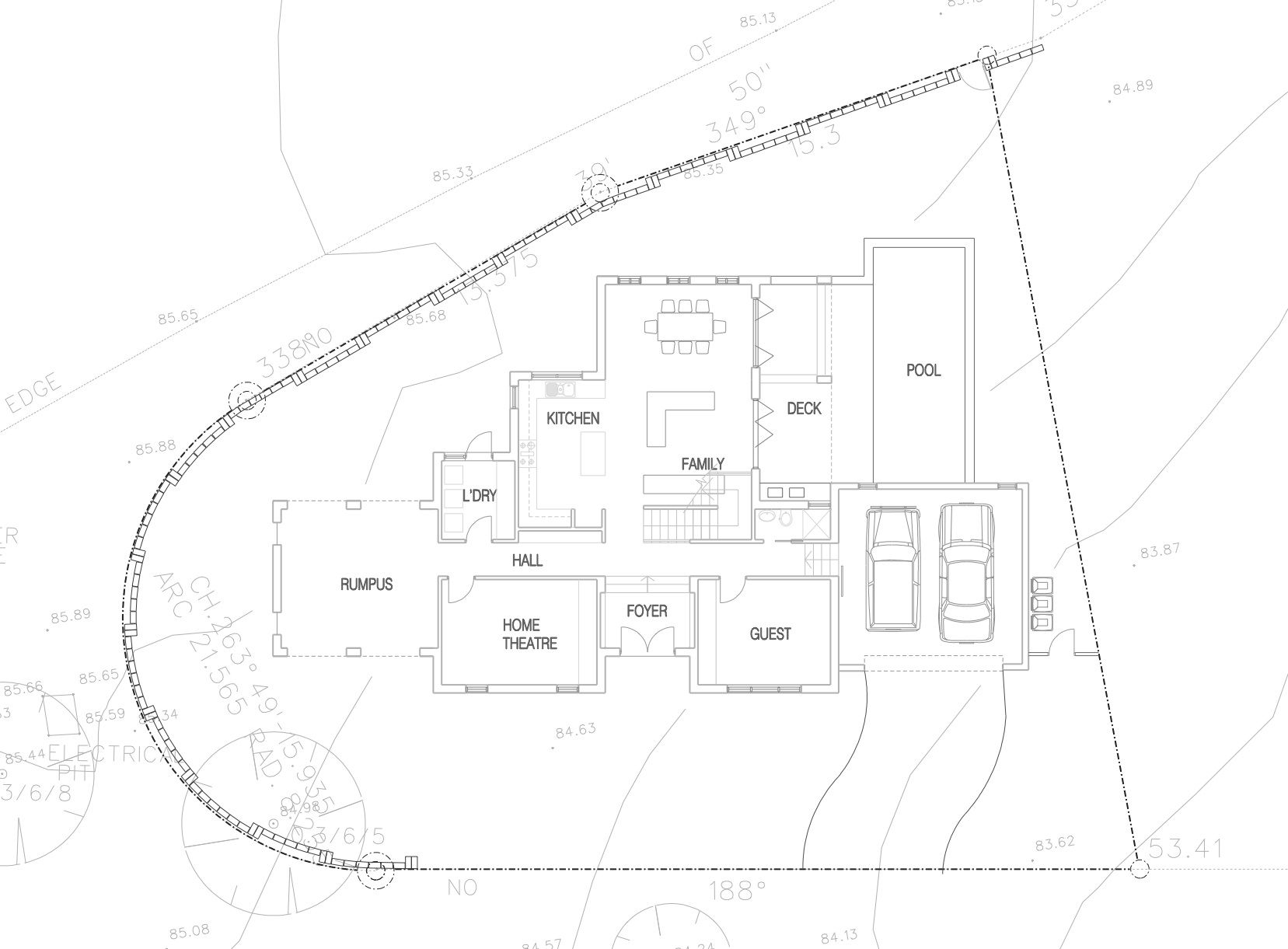
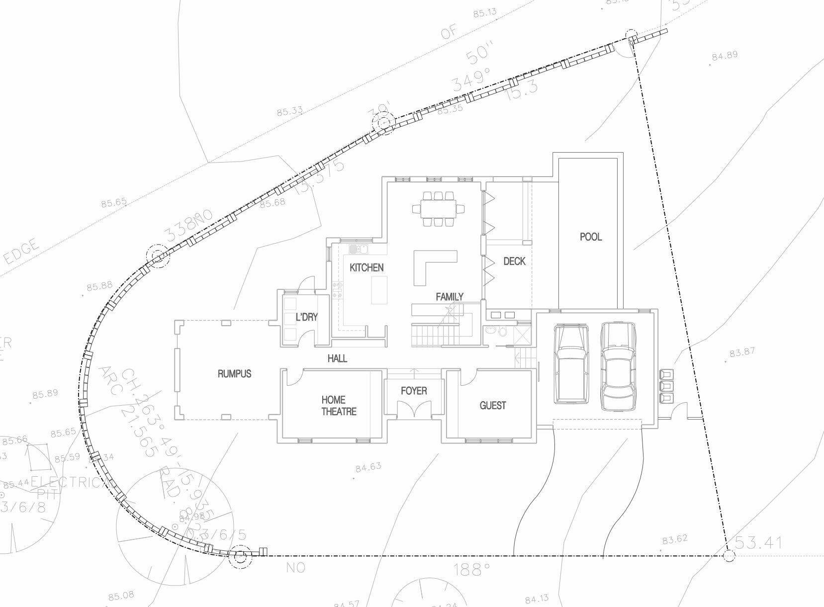
DA Approved Two Stories Dwelling With In-ground...

This 630 sqm DA approved land located at the end of Clontarf Street ( cul-de-sac ). It has approved to build a two storey dwelling with 4 bedrooms, 4 bathrooms, Double Garage and an In-ground Swimming Pool.

Excellent located with bus stop on your door step, minutes to Wakehurst Golf Course.

Fantastic Opportunity to secure this DA approved site to build your dream home.

Further details, please contact Calibre Properties Sydney on 9518 9992.
Address 29 Clontarf Street, Seaforth
Price SOLD
Property Type Residential
Property ID 42
Category Vacant Land
Land Area 630 m2

Quick Links

Agent Details

Leasing Team photo

Leasing Team

02 9518 9992
View Profile